Értékesítő:
Takács Attila

Eladó ingatlan, Eger

Hirdetés azonosító: 9238781

Státusz
Eladó ingatlan
Település
Eger
Utca
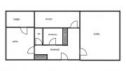
Alapterület
54 m2
Ár
37 700 000 Ft
Leírás
Egyéb jellemzők

Egerben a Fesővárosban liftes, szigetelt PEVA épületben, eladó egy 8. emeleti, 54 m2-es, 2 szobás, jó elosztású nagy teraszos, panorámás lakás.
A lakás fűtése távfűtés, hőfokszabályzós. ( fűtés átalány: 14 eft/hó)
A lakás eredeti, de megkímélt állapotú, rendben tartott.
A kisebb szobában klíma lett telepítve.
A konyhabútor a vételár része, a közlekedőben 2 nagy méretű beépített praktikus kialakítású.
Az épület rendezett, szigetelt, a lift felújított.
A lift akár kerekesszékkel is jól megközelíthető.
A ház előtt a parkolás ingyenes.

Azonosító9238781
TípusPanellakás
Szobák száma2
Fűtési módTávfűtés egyedi méréssel
ÁllapotÁtlagos
Építés éve1975
Emelet8.
ÉrtékesítőTakács Attila
Telefonszám:0620807-7504
Telefonszám:
Azonosító9238781
StátuszEladó ingatlan
TelepülésEger
Utca
Alapterület54 m2
Ár 37 700 000 Ft
Leírás

Egerben a Fesővárosban liftes, szigetelt PEVA épületben, eladó egy 8. emeleti, 54 m2-es, 2 szobás, jó elosztású nagy teraszos, panorámás lakás.
A lakás fűtése távfűtés, hőfokszabályzós. ( fűtés átalány: 14 eft/hó)
A lakás eredeti, de megkímélt állapotú, rendben tartott.
A kisebb szobában klíma lett telepítve.
A konyhabútor a vételár része, a közlekedőben 2 nagy méretű beépített praktikus kialakítású.
Az épület rendezett, szigetelt, a lift felújított.
A lift akár kerekesszékkel is jól megközelíthető.
A ház előtt a parkolás ingyenes.

TipusPanellakás
Szobák száma2
Fűtési módTávfűtés egyedi méréssel
ÁllapotÁtlagos
Építés éve1975
Emelet8.